服务热线:020-6636 3886

大同凯德世家会所

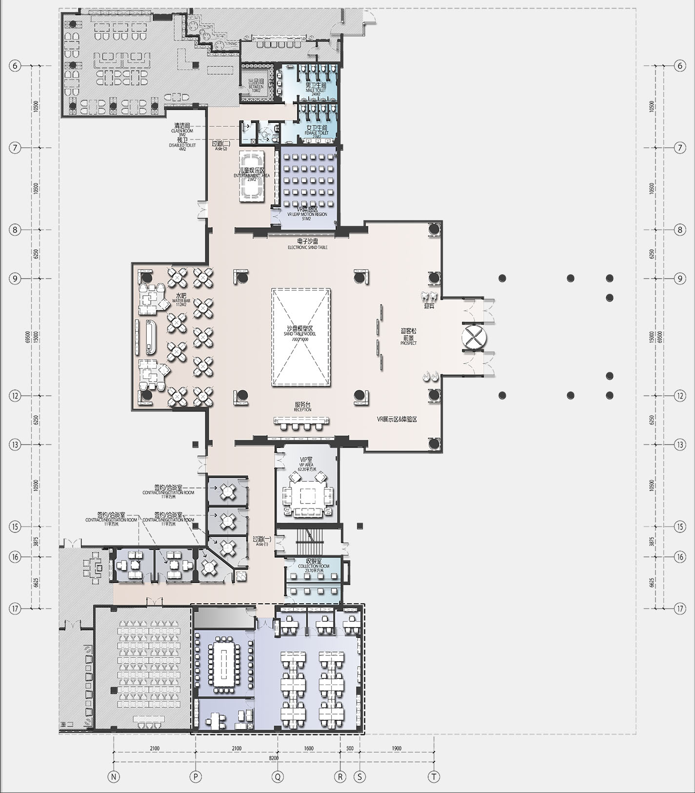
项目概况

  • 项目地点:山西 大同
  • 项目规模:3477㎡.

本项目位于大同市平城区南关街道迎宾街凯德世家国金中心,总面积约为3477m²。
设计理念:运用线条与色彩将空间的纵深感延续,在观感上无限延伸,使整个空间极具张力。材料使用上,在将不同材质配合使用的同时还保留了其原本的色泽和质感,

利用材料语言高级、凝练的表达方式展现出和谐的视觉效果。而清透素雅的顶面灯饰与区域内配色略微活泼的家具在空间与色彩上交相呼应,让整个设计传统中不失创新,

古朴中不失趣味。



Email:lcmj@lcmjspace.com

Address:广州市天河区黄埔大道西120号高志大厦21层

关注我们